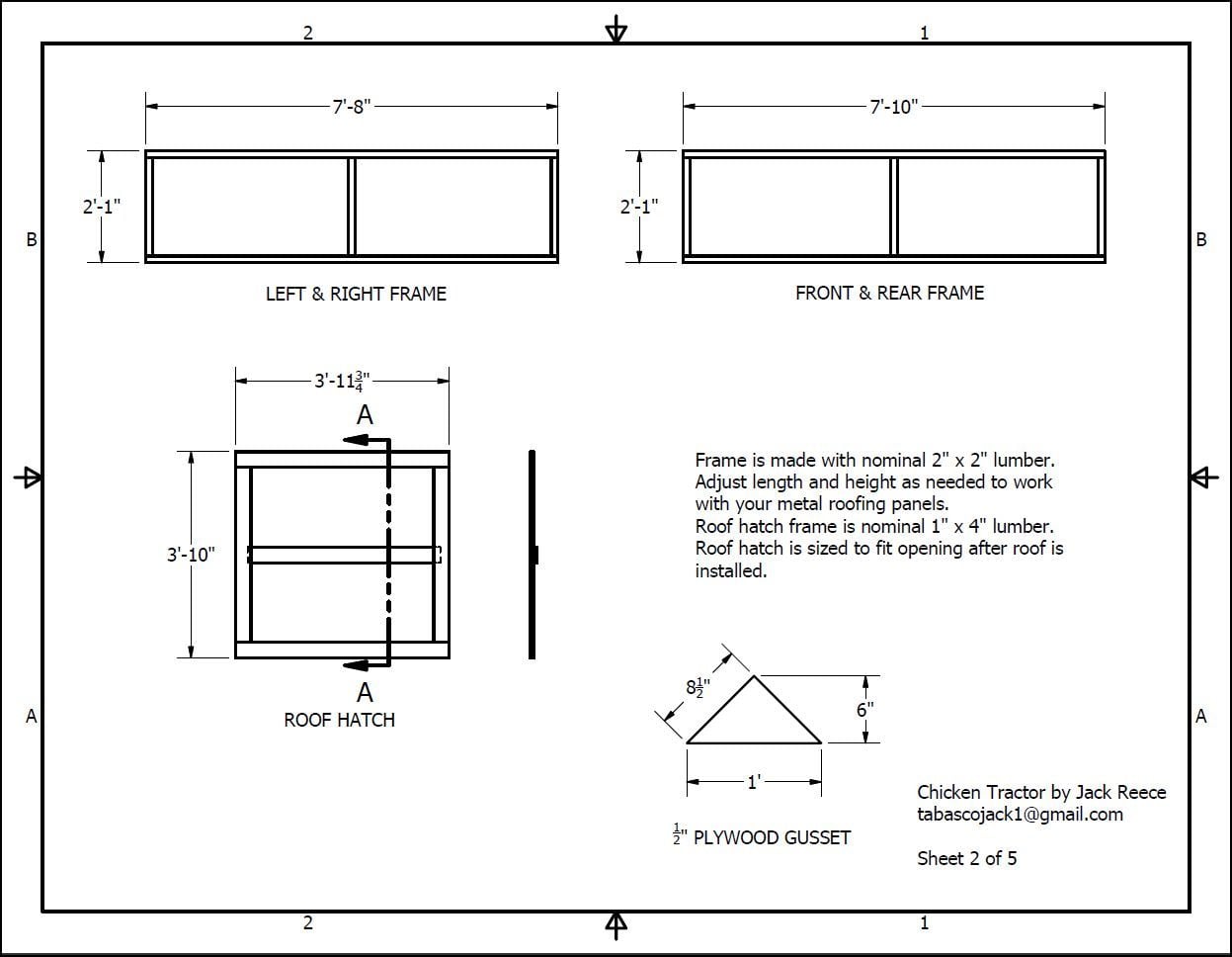
I wanted to share my design for a mid-sized chicken tractor. It's approximately 8'x8' and houses 25-35 Cornish Rock crosses. Some changes I've made after I built it were to add a strip of fencing around the bottom that lays out on the ground and a 4' section of PVC gutter for fermented feed. Latest change is using a couple of cut up bicycles for the wheel assembly. Makes it easier to raise and move.
I'd be glad to email the PDF's to anyone who's interested
I'd be glad to email the PDF's to anyone who's interested