Quote:
OMG!! how cute!!
Follow along with the video below to see how to install our site as a web app on your home screen.
Note: This feature may not be available in some browsers.
Quote:
OMG!! how cute!!
k thanks guys for your help. I am trying to figure out if I want one BIG coop divided into pens or if I want a few smaller coops. Ideally I want about 25 - 30 hens. With maybe 3 or 4 Roos. I do want a few different breeds as well. So many choices... UGH
If you could do a huge coop and divide it into smaller coops with nice long runs that would be good for you. Id like one
Thanks.OK so I guess I kinda have a dumb question. Wouldnt it be easier to have one big coop and divide it into smaller pens ( kinda like stables) within the one larger coop? Each one of the pens having a separate run outside. This way you can house one breed or use for a brooding pen or a breeding pen. And so if you want specific ones to breed you move those hens in with that roo and let those hens go broody or remove just those eggs from that pen into the incubator? Sorry I ask so many questions. You guys are so much more helpful then books![]()
![]()
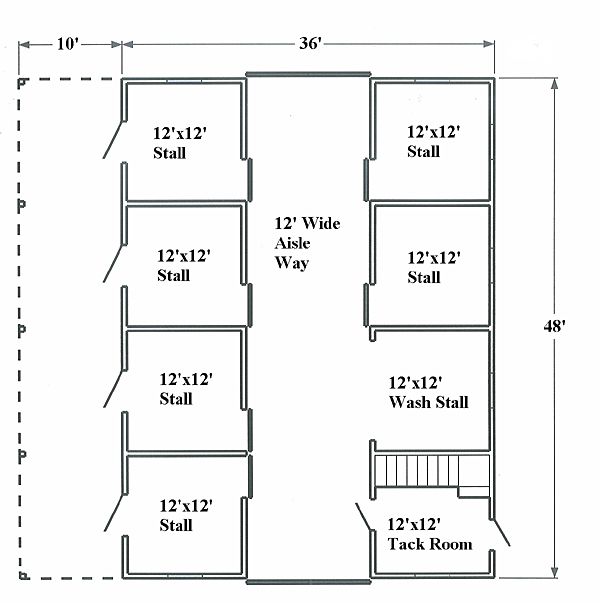
Thanks Guys. This is what I am thinking.... Tell me your thoughts. I found this plan and I like the idea of having them all in one area. ( I might make the stalls (aka pens) 8x8 but not sure yet. But here is how I see it.... First Stall = Laying hens, Next Stall = Meat birds, Next Stall = Breeding Pen one with Rooster and a few girls, Next Pen = Another Breeding Pen ( different breed maybe) , Next Stall = Brooding Pen for Mama's and babies or for new baby chicks.... Others = room to grow. Each one with a run.![]()
![]()
Ok now for a hen update! I thought she was egg bound, so I read about checking for one, used the lube ect, soaked her in warm water,
when I did the vent probe this water white substance came out!! It was like egg white!!! I dried her off with a towel and put her in the crate with a space heater situated outside the crate, but she seems even more lethargic and I did not feel an egg!! I have never had a sick chicken!! I have no idea why she's sick?? No one else is....yet?? I'm so bummed!! I don't know how to fix her!![]()
don't forget the free online source for old books! http://www.Archive.org is a great source for poultry, canning, barns, building, carpentry, well everything!
It is not intuitive in searching so try many different words for the same thing one at a time in search.
example: chicken, poultry, birds, etc...
I think that's what we are gonna go with. For me I think it will be easier if they are all together in one large area rather then a bunch of little ones for feeding and cleaning anyway. With my kids being younger I can have them all in one BIG coop with me maybe each in their own pen cleaning or helping but still close enough where I am able to keep an eye on them. How are you goats doing?
I like that idea, but Id put the meat chickens on one end, hear they can be pretty stinky when they get big.. Just my thought