Coop plans for a super-beginner?

The toughest part I have learned about building for someone like me (and sounds like you) is thinking ahead to your measurements. A friend helped me so that is where someone with some experience can really help. Just little things like remembering the thickness of your T1-11 or siding and taking that into account when you lay out your floor so the edges overlap etc. There are some very good step by step "shed building" videos on you tube that can really help.
 
This is the link for plans and dimensions and all you'll need free! I'm almost finished with one ! http://blog.homedepot.com/free-plans-for-an-awesome-chicken-coop/

This was my very first project. There are certainly easier simpler ones by all means, but this looks cute and will last for ever!

400
 
Last edited:
This is the link for plans and dimensions and all you'll need free! I'm almost finished with one ! http://blog.homedepot.com/free-plans-for-an-awesome-chicken-coop/

This was my very first project. There are certainly easier simpler ones by all means, but this looks cute and will last for ever!

32 square feet and they say it would hold 12 chickens? Yeah, you could stuff that many birds in there, but that's going to leave to some behavior issues with them being all crammed in there with that many birds. More like 8.

Make sure you watch the gaps with it, and I would cover them with hardware cloth. kinda silly how the blog doesn't mention anything about protection for the chickens as well. But I guess what they're trying to sell someone on getting a pretty chicken coop.
 


true, for someone who doesn't let their birds free roam or has a run for them it would be very very bad, but my chickens will only go in there to lay and sleep.

Also, my side neighbour and myself own several dogs - best predator deterrent :) have been here a year and never seen anything other than birds.
 
Last edited:
If you have basic carpentry skills you can build a coop relatively cheap compared to what you will buy one for. I built a 6x8 with 7 foot walls (8 foot at roof peak). I bought all new materials at Lowes (minus the roof metal and windows-both gifted to me). My total bill for the coop was just under $300 ($290 something). I used treated lumber for the joist and the floor decking. I also lucked out and found the smart side siding on sale that weekend. I built my own rafters so the majority of the coop was a bunch of pine 2x4's which are under $2.00 each.

Nice looking coop and free windows. wow they look to be nice windows too esp for free... they are casements prob turned sideways which are also awning windows... my fav windows....
wish I could have found some cheap when bulding our last coop or even our big toolshed.
be sure yall to check out Clist and defintely "Habitat Restore " stores.....
 
Yes I lucked out with the windows. The friend that helped me build does construction. A customer bought them and he put them in for him. The guy did not like them so he bought another set. As you can see they still have the stickers on them and were basically brand new. Another friend of mine took a pole barn down and gave me metal for the roof. I had to patch a couple holes but other then that it worked out great. I just wish I could get a few days of warm dry weather so I can paint this thing. Its been up over a month and we still haven't had two or three days in a row where it was staying above 50 and there was not rain in the forecast, hopefully soon.
 
This is probably more than you had in mind, but I'll offer it as a suggestion.




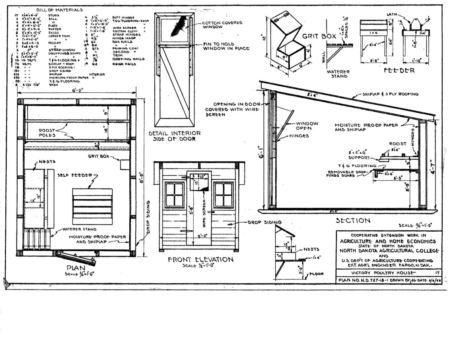
Called the "Victory Poultry House", basic design dates to 1944, or during WWII, when everything in the US carried the victory label. Back then, this WAS the basic backyard poultry setup.

Now imagine a shed like this being only 6' x 6', and also imagine a matching covered run attached to in on the right side, as you are viewing it. Run also 6' x 6' or longer if you wanted it to be. Or leave it 6' x 8, making the whole thing 12' x 8'. So is easily expandable.

Very basic framing skills needed and this has most of the required essentials, and in the right proportion. Build this, with attached run, and you would have a safe, tidy, basic backyard setup.

BTW, this came from North Dakota. Depending your your location, not likely it would need any of the tar paper liner, etc. If it needed that, it needed more ventilation. Make the windows a bit taller and put some screened vents in up near the roof above them.

This shows a wooden floor. You could put it on skids and do deep litter inside the shed and in the run, and that would enable you to dispense with the droppings board.
 
We're copying this plan with a few modifications and have found it to be super easy so far. Spent about $240 something at Lowes for the wood and have gone back a few times to get nails, etc. We orderes a nail gun from either amazon or harbor freight. MUCH easier than doing it by hand, highly recommend lol

Were new too but its pretty easy

https://www.backyardchickens.com/a/jonny-anvils-chicken-coop

We changed all the OSB though, 3/4 inch pressure treated plywood on the floor and 3/8 pine sheathing for the walls, which was actually cheaper. We plan on covering the walls with something later.

We also made the base a little bigger, 6x8, to add nest boxes and a storage spot for stuff because we didn't want the nest boxes inside. .

And we'll probably add lower roosts.

But yeah, it's really cheap and easy
 
You are right, it does seem daunting.

As has been suggested, try the coop plans pages.

The "you can do this" doesn't come as part of a plan but in your desire and passion to get it done.

The idea of looking for a used/ free shed sounds ideal because of the cost and that you only need to make a few modifications in order to turn it into a coop. You also get to see how a shed is constructed.

Or what about using pallets? There are designs out there for chicken coops made out of pallets. Pallets are normally free.

If you have never built anything before there will be a steep learning curve but it is enormous fun.

If you get a cheap or free shed or lots of free pallets you get to construct a coop at very little cost, whilst you learn which is a better alternative to buying lots of timber and then wasting quite a bit of it by making beginner mistakes, which is inevitable.

If you go down the shed or pallet route, think of it as a prototype. A chicken coop that doesn't need to last a lifetime- as long as it covers your basic needs. By the time you have finished it, you will be much more confident and ready to build your perfect coop from scratch!

I have designed an infographic and written an article about some of the essential elements in the design of your coop and run.It might be of use to you once you have decided on a plan...

You can download the infographic and read the article by clicking on the link below.

http://www.allaboutchickens.info/better-chicken-coop-run/

But whatever you decide good luck and keep us informed.
 

New posts New threads Active threads

Back
Top Bottom