For what its worth I am all for the extra expense in regard to design
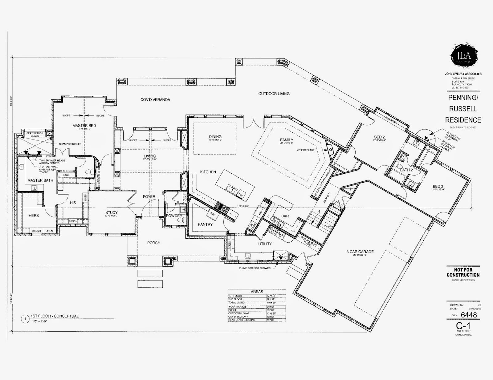
If you take a look at the lay out there are only a few walls that angle. on either side they are perpendicular to each other The biggest expense would be foundation and roof. But a house of this square footage will have the same amount of foundation and roof. square footage wise.
I have seen some wowser layouts rounded walls multi angular "wings" But with regard to convenience to layout this one is by far the best. straight shot from the garage to either the laundry pantry or kitchen Or a straight shot in to the house propper. Master bedroom is on the opposite side of the house from the other bedrooms.
I also like the fact that EACH bedroom has an exterior door. No climbing out of windows in emergencies.
The sight line from the kitchen is Awesome whether you have small children or Grown up company. but if you take that sight line out through the walls of glass I am certain they have framed in an awesome view... For me it would include my horses out in pasture so I could count noses occasionally.
If it were on my property It would have to be mirrored vertically and turned so that view would facing the south east. With all that veranda i would need it to be covered but that would be all the changes I would make.... for myself.
deb
If you take a look at the lay out there are only a few walls that angle. on either side they are perpendicular to each other The biggest expense would be foundation and roof. But a house of this square footage will have the same amount of foundation and roof. square footage wise.
I have seen some wowser layouts rounded walls multi angular "wings" But with regard to convenience to layout this one is by far the best. straight shot from the garage to either the laundry pantry or kitchen Or a straight shot in to the house propper. Master bedroom is on the opposite side of the house from the other bedrooms.
I also like the fact that EACH bedroom has an exterior door. No climbing out of windows in emergencies.
The sight line from the kitchen is Awesome whether you have small children or Grown up company. but if you take that sight line out through the walls of glass I am certain they have framed in an awesome view... For me it would include my horses out in pasture so I could count noses occasionally.
If it were on my property It would have to be mirrored vertically and turned so that view would facing the south east. With all that veranda i would need it to be covered but that would be all the changes I would make.... for myself.
deb

